Tarihi Mekanlar KiÅŸisel Ansiklopedi Erol ÅžAÅžMAZ
  Ä°STANBUL İLİ ESERLERİ
  MİMAR SİNAN VE ESERLERİ
  Ä°ZMİR İLİ ESERLERİ
  ADIYAMAN İLİ ESERLERİ
  AFYON İLİ ESERLERİ
  AÄžRI İLİ ESERLERİ
  AKSARAY İLİ ESERLERİ
  AMASYA İLİ ESERLERİ
  ANKARA İLİ ESERLERİ
  ANTALYA İLİ ESERLERİ
  AYDIN İLİ ESERLERİ
  BARTIN İLİ ESERLERİ
  BALIKESİR İLİ ESERLERİ
  BATMAN İLİ ESERLERİ
  BİLECİK İLİ ESERLERİ
  BURSA İLİ ESERLERİ
  Ã‡ANAKKALE İLİ ESERLERİ
  EDİRNE İLİ ESERLERİ
  ELAZIÄž İLİ ESERLERİ
  ERZİNCAN İLİ ESERLERİ
  ERZURUM İLİ ESERLERİ
  ESKİŞEHİR İLİ ESERLERİ
  GAZİANTEP İLİ ESERLERİ
  HATAY İLİ ESERLERİ
  ISPARTA İLİ ESERLERİ
  KARABÜK İLİ ESERLERİ
  KARAMAN İLİ ESERLERİ
  KARS İLİ ESERLERİ
  KASTAMONU İLİ ESERLERİ
  KAYSERİ İLİ ESERLERİ
  KIRIKKALE İLİ ESERLERİ
  KIRKLARELİ İLİ ESERLERİ
  KIRÅžEHİR İLİ ESERLERİ
  KOCAELİ İLİ ESERLERİ
  KONYA İLİ ESERLERİ
  KÜTAHYA İLİ ESERLERİ
  MALATYA İLİ ESERLERİ
  MANİSA İLİ ESERLERİ
      Manisa Ören Yerleri
      Manisa ÇeÅŸmeleri
      Manisa Kiliseleri
      Manisa Hanları
      Manisa Camileri
      Manisa Türbeleri
      Manisa Tarihi Yapıları
      Manisa Hamamları
      Manisa Köprüleri
  MARDİN İLİ ESERLERİ
  MERSİN İLİ ESERLERİ
  MUÄžLA İLİ ESERLERİ
  NEVÅžEHİR İLİ ESERLERİ
  ORDU İLİ ESERLERİ
  SAKARYA İLİ ESERLERİ
  SAMSUN İLİ ESERLERİ
  SİİRT İLİ ESERLERİ
  SİVAS İLİ ESERLERİ
  ÅžANLIURFA İLİ ESERLERİ
  TEKİRDAÄž İLİ ESERLERİ
  TUNCELİ İLİ ESERLERİ
  TOKAT İLİ ESERLERİ
  TRABZON İLİ ESERLERİ
  UÅžAK İLİ ESERLERİ
  VAN İLİ ESERLERİ
  YOZGAT İLİ ESERLERİ
  SELÇUKLU HANLARI
  OSMANLI HANEDAN TÜRBELERİ

Mail listemize abone
olun, güncel
yayınlarımızdan
haberdar olun!

Bunun için,
Lütfen mail adresinizi girin.
  Ana Sayfa   |  Üye Kayıt   |  Ãœye GiriÅŸ   |  İletiÅŸim   
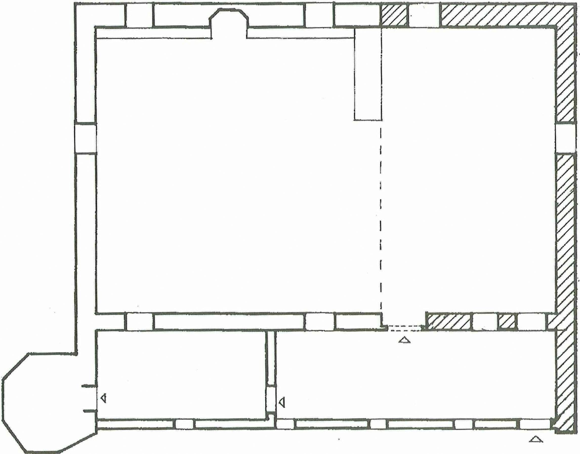
KIRKAĞAÇ – SARI HOCA CAMİ -MANİSA

Kırkağaç İlçesi Karaali Mahallesi 10. Sokakla 3. Sokağın kesiştiği yerde bulunmaktadır.

Bugünkü görünüşüne göre büyük çaplı bir onarım geçirdiği anlaşılmalda birlikte eser, plan özellikleri ve orijinal görünümünü koruyabilmiş minare kaidesindeki taş ve tuğla almaşık duvar örgüsünden hareketle, Erken Osmanlı dönemine tarihlendirilebilir.

San Hoca Camii, enine dikdörtgen planlı, düz tavanlı ve kırma çatılıdır . Yapının kuzeyindeki son cemaat yeri sonradan eklenmiştir . Esas giriş yapının kuzeyindeki eski görünüşlü ahşap kapıdan sağlanmaktadır. Caminin kuzeydoğu köşesinde sıvanmış sekizgen gövdeli minaresi bulunmaktadır. Minarenin sıvanmayan kaidesinin alt köşesinde orijinal malzemesi olan iki sıra tuğla tek sıra kesme taş görülmektedir . Yapının doğu cephesi oldukça hareketsiz düzenlenmiştir. Sarı renkteki moloz taşlardan örülmüş bu cephede, üst üste açıl­ ınış iki dikdörtgen pencere bulunmaktadır . Caminin güney cephesi yine moloz taştan örülmüştür. Güney cephede altlı üstlü üçer pencere sırası açılmıştır . Mihrabın önüne gelen ve doğuya yakın taraftaki alt pencerelerin üst kısımları tuğla örgülü, sivri kemerli birer alınlıkla sonuçlandırılmıştır. Cephenin ortasındaki alt pencerenin hemen batısında kesme taştan bir dilatasyon çizgisi belirgindir. Yine güney cephenin batı köşesindeki moloz taş dolgusu da farklı renktedir. Caminin doğu cephesindeki alt ve üst pencereler ile güney cephedeki dilatasyon izinin doğusunda kalan altlı üstlü dört pencere orijinal görünüme sahiptir .

Dikdörtgen harimin kuzeyinde, kapı eksenine yerleştirilmiş iki yuvarlak mermer sütunun taşıdığı sonradan eklenmiş mahfil kısmı bulunur. Yapının yarı yüksekliğe kadar fayansla kaplanmıştır. Beş sıra mukarnaslı, beşgen mihrap boyanmasına rağmen orijinal görünümdedir. Bugünkü minberin batısında kalan kısımla, minberin sonradan yapıldığı söylenebilir .

Caminin haziresinde çok sayıda bitkisel bezemeli, cami tasvirli ve sarıklı mezar taşlan bulunmaktadır. Bunların çoğunun çevredeki başka cami ve mezarlıklardan buraya getirildiği de ilçe halkı tarafından ifade edilmektedir. 2001 Ekiminde camiye yaptığımız son incelemede orijinal dış dokusunun yok edildiği yeni bir görünüme sokularak onarıldığı görülmüştür.

KAYNAK: MANİSA KÜLTÜR VARLIKLARI ENVANTERİ
FOTOÄžRAFLAR: EROL ÅžAÅžMAZ
KIRKAĞAÇ – SARI HOCA CAMİ -MANİSA Fotoğraf Galerisi